Rif: 1052 - AA
ROMA
ROMA - zona Camilluccia - Farnesina
RealEs Group S.r.l - VIA DEI COLLI DELLA FARNESINA, all'interno del comprensorio Belvedere, proponiamo in vendita un esclusivo ATTICO e SUERATTICO unico nel suo genere di 440mq coperti più terrazzi.
- Attualmente l'appartamento si trova in uno stato avanzato di lavori di ristrutturazione di un prestigioso progetto e si vende nello stato in cui si trova (al 70% dei lavori) e rimarrà all'acquirente l'onere a propria cura e spese di ultimarli a suo piacimento.
- L'appartamento e munito anche di infissi , installati nel mese di Gennaio 2026, di marca" Schuco ", ed internamente composto;
- Piano Attico -
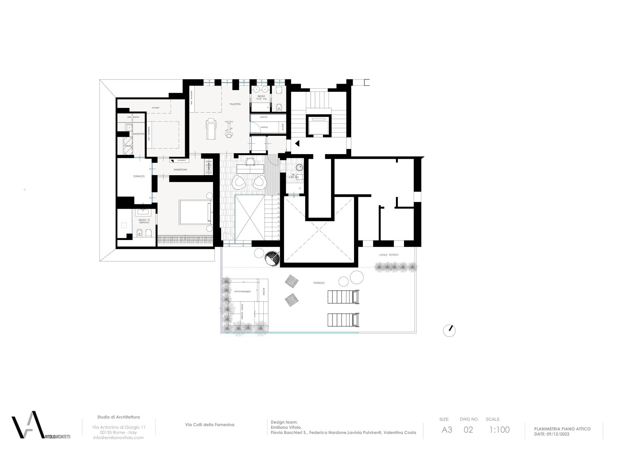
Doppio Ingresso, di cui il padronale e' con ascensore diretta all'interno dell'immobile, salone quadruplo che affaccia su un ampio terrazzo panoramico, camera da letto matrimoniale con cabina armadio e bagno, due camere con bagno, cucina a vista su un ampia veranda a vetrate, due bagni di servizio.
- Piano Super Attico-
Accesso tramite scale o ascensore interno di collegamento , tre camere da tetto con rispettivi bagni, bagno di servizio.
La proprietà si completa con due posti auto, una cantina ed una soffitta.
- L'immobile può essere frazionato anche in più unità immobiliari (vedi planimetria di ipotesi frazionamento).
Per avere maggiori dettagli e/o fissare un appuntamento si prega di contattarci telefonicamente.
Le presenti informazioni e planimetrie sono meramente indicative e non costituiscono elementi contrattuali.
La società RealEs Group S.r.l. è a vostra disposizione per assistervi nella vendita e locazione di immobili residenziali e commerciali.
I nostri servizi:
- Valutazioni gratuite
- Compravendite
- Locazioni
- Redazione, registrazione e asseverazione contratti di locazione concordati a tassazione agevolata (convenzionati Confappi Roma)
- Consulenza notarile, legale e tecnica
- Ape (certificazione energetica)
- Visure Catastali Planimetrie Catastali (DOCFA, CILA, DIA)
Per info e appuntamenti contattateci telefonicamente al seguente numero:
06/83086301 oppure visita il nostro sito web www.realesgroup.com e compila il form di contatto.
- Attualmente l'appartamento si trova in uno stato avanzato di lavori di ristrutturazione di un prestigioso progetto e si vende nello stato in cui si trova (al 70% dei lavori) e rimarrà all'acquirente l'onere a propria cura e spese di ultimarli a suo piacimento.
- L'appartamento e munito anche di infissi , installati nel mese di Gennaio 2026, di marca" Schuco ", ed internamente composto;
- Piano Attico -
Doppio Ingresso, di cui il padronale e' con ascensore diretta all'interno dell'immobile, salone quadruplo che affaccia su un ampio terrazzo panoramico, camera da letto matrimoniale con cabina armadio e bagno, due camere con bagno, cucina a vista su un ampia veranda a vetrate, due bagni di servizio.
- Piano Super Attico-
Accesso tramite scale o ascensore interno di collegamento , tre camere da tetto con rispettivi bagni, bagno di servizio.
La proprietà si completa con due posti auto, una cantina ed una soffitta.
- L'immobile può essere frazionato anche in più unità immobiliari (vedi planimetria di ipotesi frazionamento).
Per avere maggiori dettagli e/o fissare un appuntamento si prega di contattarci telefonicamente.
Le presenti informazioni e planimetrie sono meramente indicative e non costituiscono elementi contrattuali.
La società RealEs Group S.r.l. è a vostra disposizione per assistervi nella vendita e locazione di immobili residenziali e commerciali.
I nostri servizi:
- Valutazioni gratuite
- Compravendite
- Locazioni
- Redazione, registrazione e asseverazione contratti di locazione concordati a tassazione agevolata (convenzionati Confappi Roma)
- Consulenza notarile, legale e tecnica
- Ape (certificazione energetica)
- Visure Catastali Planimetrie Catastali (DOCFA, CILA, DIA)
Per info e appuntamenti contattateci telefonicamente al seguente numero:
06/83086301 oppure visita il nostro sito web www.realesgroup.com e compila il form di contatto.
Consistenze
| Descrizione | Superficie | Sup. comm. |
|---|---|---|
| Principali | ||
| Immobile - 4° piano | 360 Mq | 360 Mqc |
| Mansarda - 5° piano | 81 Mq | 81 Mqc |
| Accessorie | ||
| Terrazza - 4° piano | 150 Mq | 30 Mqc |
| Totale | 471 Mqc | |







